通用
染整、服装、面料
日用及防护用品
纤维纱线类
拉链纽扣
土工(布)合成材料
地毯
家居材料类
雨伞类
袜子类
汽车及内饰件
建材与公共安全类
童(婴儿)车(床)
头盔安全帽
塑料及其制品
阀门
其他测试仪器
产品目录索引
< a href=" " title="免费电话">免费电话 a>
| 编号 | 产品名称 | 符合的主要标准 |
 |
FSY153-Ⅳ床芯弹性测试仪 |
|
 |
FSY153-I弹簧受压耐疲劳仪 |
|
 |
FSY153弹簧受压耐疲劳仪 |
|
 |
FWS481家用泵测试系统 |
GB/T 40181-2021等测试标准。 |
 |
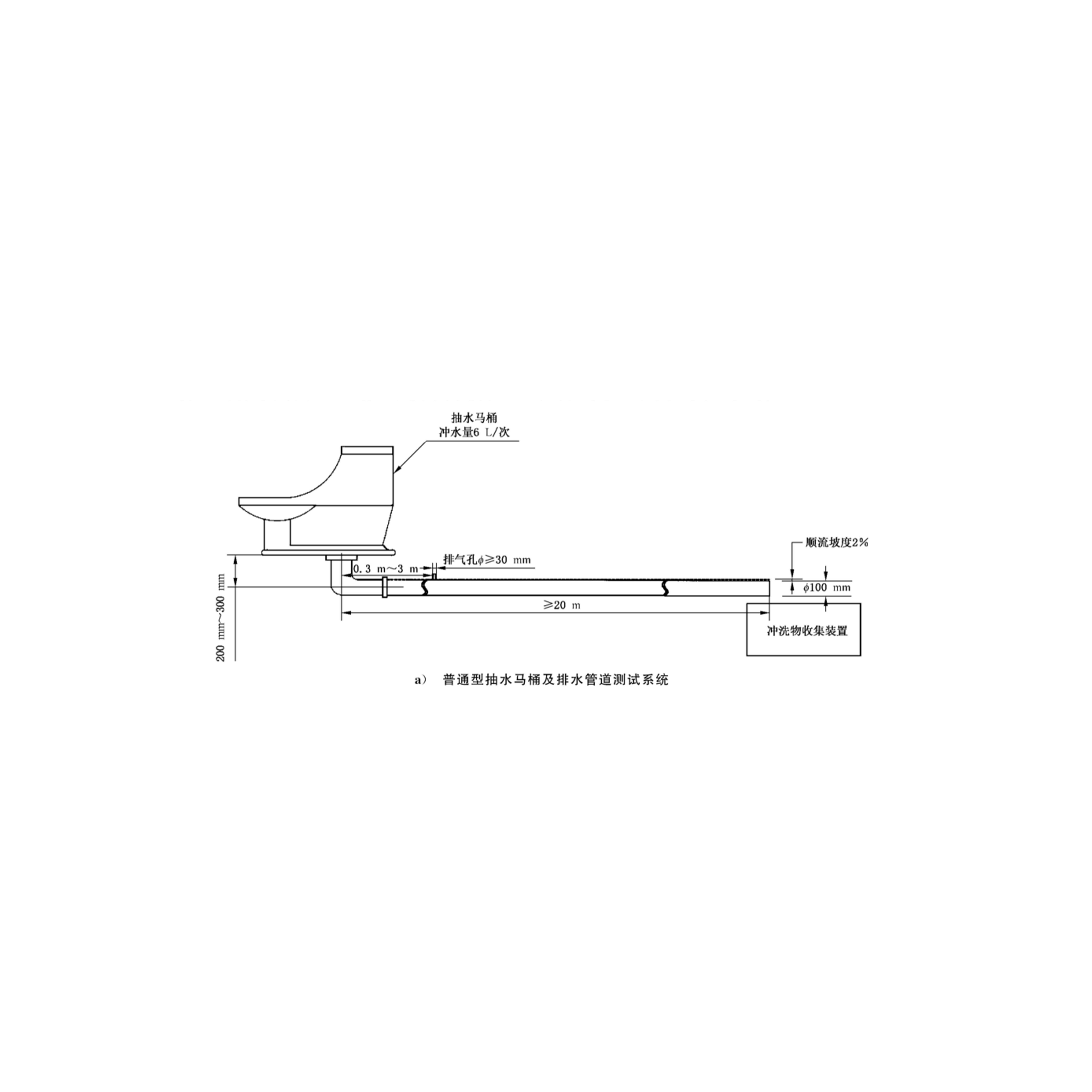
FWS482抽水马桶及排水管道测试系统 |
GB/T 40181-2021等测试标准。 |
 |
FWS483沉解试验系统 |
GB/T 40181-2021等测试标准。 |
 |
FY301床垫耐久性试验机 |
QB1952.2等标准。 |
 |
FY302海绵回弹性测定仪 |
|